LUXUS invites the sophisticated beer drinker to experience the one-of-a-kind boutique taproom. A relaxed, comfortable, and elegant environment for those who enjoy delicious beer and craft food.

 
 
IMAGES.JPG

PROJECT SCOPE

To research the elements and psychology behind luxury restaurant design. Determine how acoustics and lighting impact the mood and perception of space. Design a trendy Instagram worthy restaurant by incorporating technology and eye-catching materials.


USER

Local Portlanders 21+

Sophisticated Beer Drinker

Portland Foodie

Staff & Employees


DESIGN CONCEPT

Richness through color, texture, and illuminance. LUXUS is bold elegance that reflects the refined flavors of beer. Warm wood, hand-crafted tiles and, beautifully stained concrete draw in the sophisticated beer drinker for the perfect “Instagram moment”.

materials-luxus.jpg
LUXUS-finishes.jpg
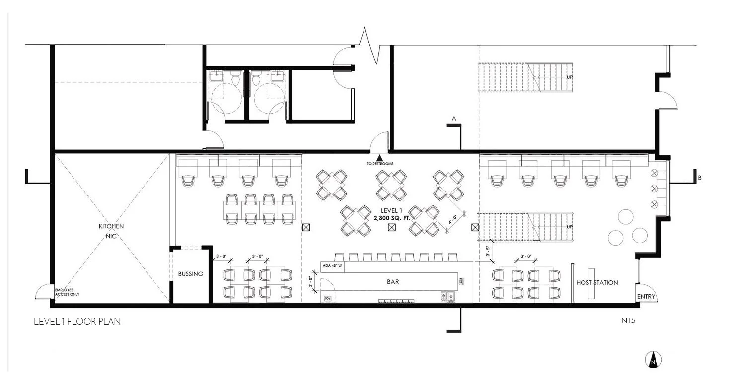
LEVEL 1.JPG
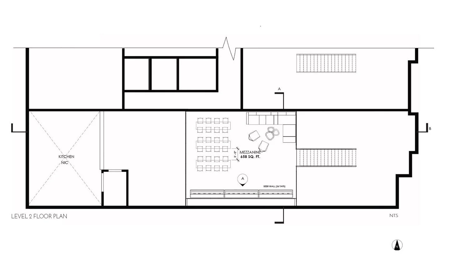
LEVEL 2.JPG
ELEV 1.JPG